Projectes

2003-2025


EDIFICACIÓ

_Disseny d’agrobotiga, a Artés

_Informe de patologies, a Manresa

_Reforma de cobert agrícola, a Folgueroles

_Habitatge unifamiliar en filera, a Manresa

_Rehabilitació de Cal Xut, Aguilar de Segarra

_Dos habitatges en filera, a Manresa

_Habitatge unifamiliar aïllat, Santpedor

_Habitatge unifamiliar aïllat, Pineda de Bages

_Reforma de l’antiga escola de Bruguera, i de l’habitatge del mestre

_Rehabilitació d’habitatge unifamiliar aïllat, per a turisme rural, a Ribes de Freser

_Habitatge unifamiliar aïllat a Sant Martí de Centelles

_Edifici plurifamiliar a Manresa

_Garatge semi-soterrat a Campdevànol

_Peritatge sobre l’elevació d’una solera i el desplom d’un edifici a Manresa

_Habitatge unifamiliar aïllat a Calders

_Habitatge unifamiliar aïllat a la Vall d’Uxó

_Habitatge unifamiliar entre mitgeres a Manresa

_Ampliació del local social de Castellcir

_Reforma d’habitatge en masia, a Castellnou de Bages

_Enderroc parcial i consolidació de nau industrial

_Edifici plurifamiliar a Manresa

_Habitatge unifamiliar aïllat a Casatelldefels

_Reforma de  Cobert Agrícola

_7 Habitatges unifamiliars en filera a Premià de Mar

_Edifici plurifamiliar a Manresa

_Dos Edificis plurifamiliars a Blanes

_Habitatge en nau industrial a Reus

INTERIORISME

_Reforma del vestíbul del Cinema Catalunya

_Espai ARTIUM

_Botiga de moda a Madrid

_Reforma i ampliació del Casino de Marbella

_Sabateria a Lanzarote

_Llibreria a Lanzarote

URBANISME
_Urbanització del carrer Núria de Ribes de Freser

_Reforma de la plaça del Roser de Gombrèn

_Informe de georeferenciació

_Disseny de jardí

_Legalització i ampliació de casa de colonies

_Modificació puntual del planejament vigent i avaluacio ambiental simplificada

_Pla especial per a la rehabilitació d’una masia i la implantació d’una protectora d’animals a Aguilar de Segarra

OBRA CIVIL

_Obra civil per la instal·lació d’una turbina

_Marquesina i reforç estructural per a plaques fotovoltaiques

_Cobriment de canal en recinte industrial

_Pisicna sense fi, a Campdevànol

_Reforma de piscina i jardí a Sant Feliu Sasserra

_Consolidació i reparació de mur de contenció


INFORMACIÓ

MARC BALLUS
Arquitecte

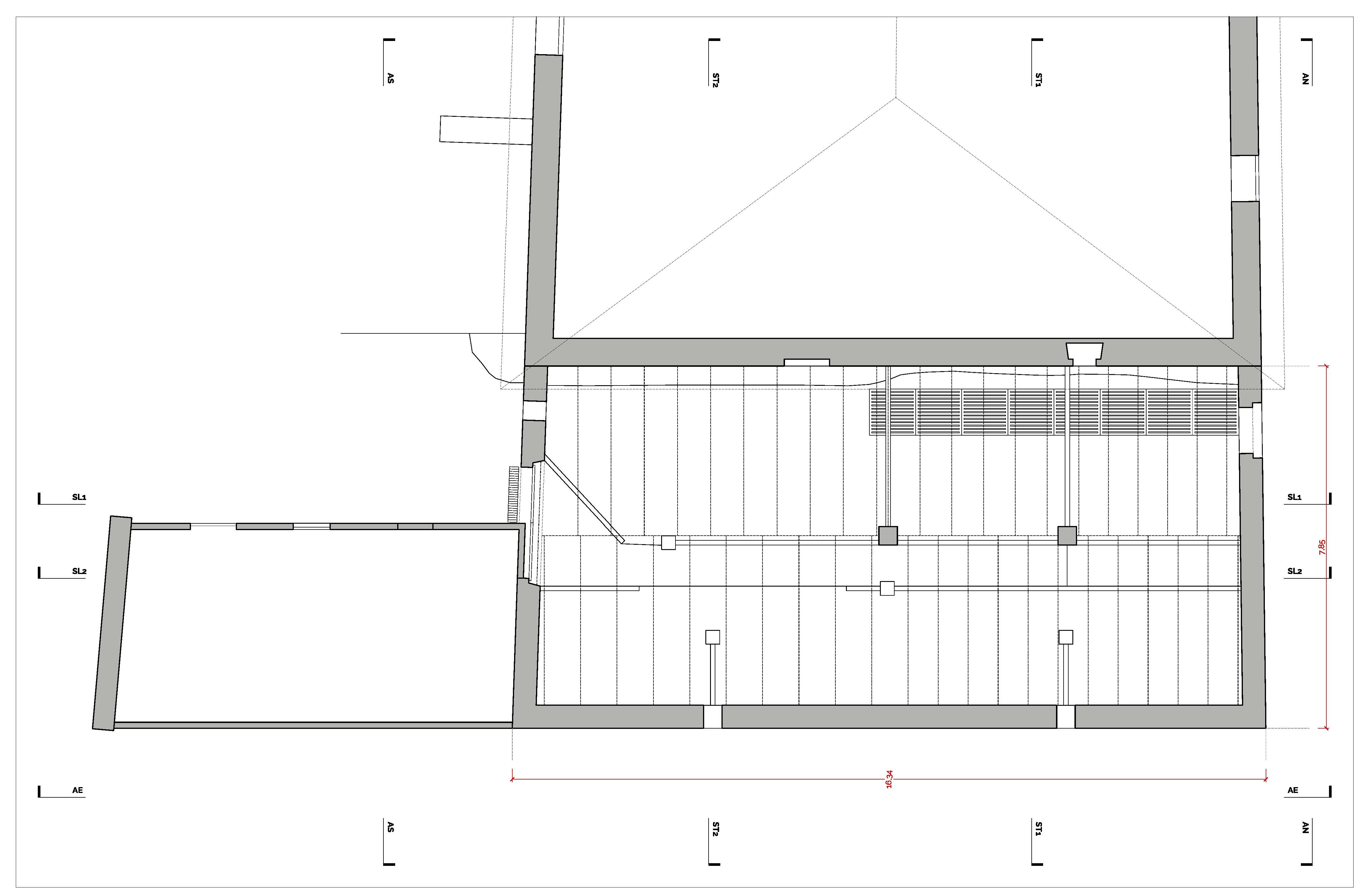
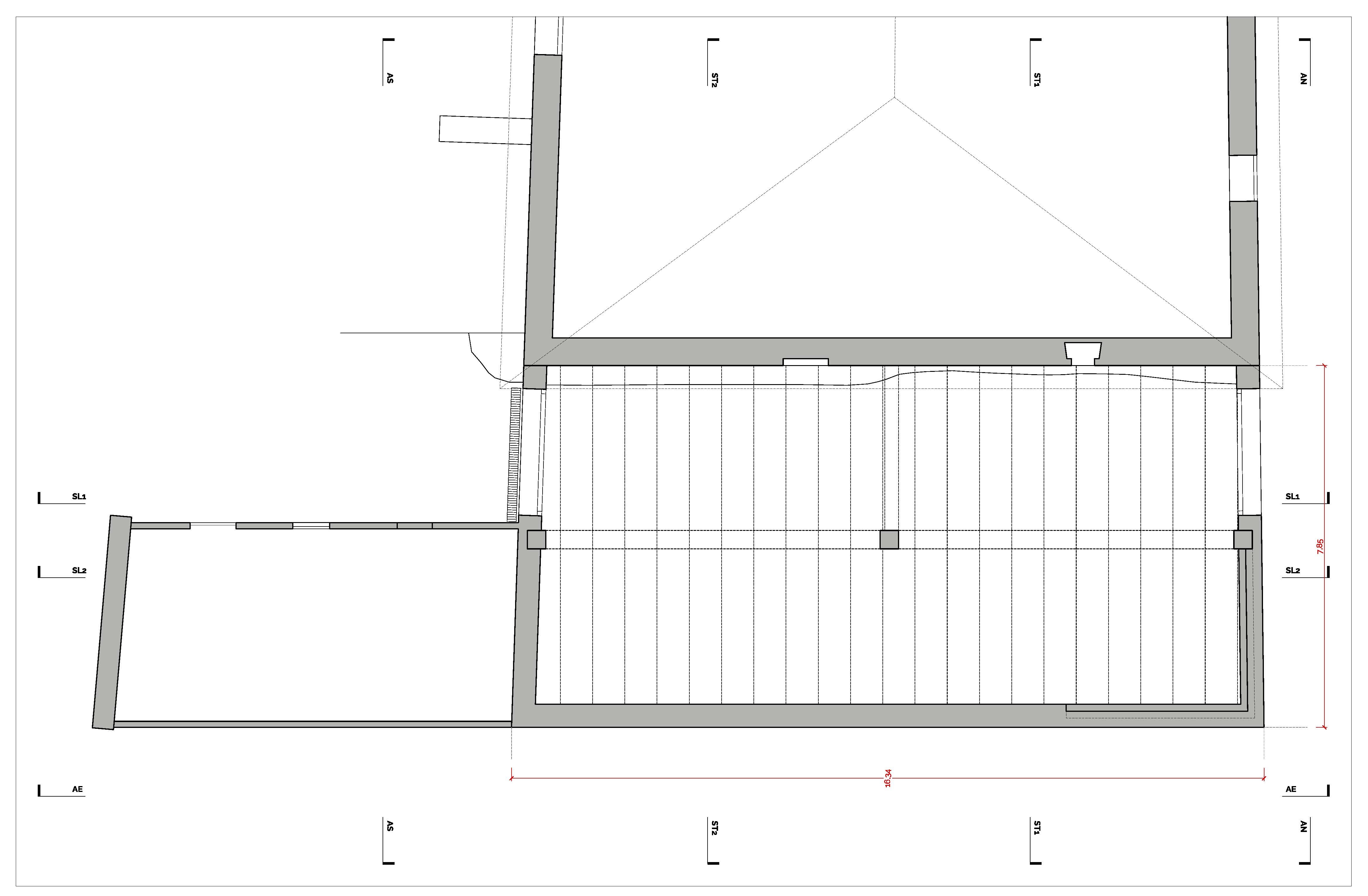
Reforma de cobert agrícola
MARC BALLÚS + GERARD GARCIA
Folgueroles


Projecte i direcció d’obra per la reforma d’un cobert agrícola en una masia. L’actuació preveu la substitució dels pilars i del sostre, i la reforma de la façana.

ESTAT INICIAL



PROJECTE